Strumenti Utente

Strumenti Sito


archeologia_storia_dell_arte_islamica_medievale

Archeologia e storia dell'arte islamica e medievale

Virtuale

Si tratta di un corso monografico sulla dinastia fatimide (909-1171).

Con arte islamica ci si riferisce anche ad una certa produzione artistica che non ha a che fare direttamente con la religione. Si intende infatti tutta la produzione artistica realizzata nella regione in cui l'Islam è predominante. Si tratta dunque di una denominazione potenzialmente problematica. Il fattore unificante è la cultura islamica.

Sia nell'attuale Yemen che nella penisola araba erano presenti, nel periodo delle conquiste, chiese finanziate dall'Impero bizantino per cristianizzare la penisola araba che era al tempo pagana. Un esempio è la chiesa di Abraha a Sana'a (capitale dello Yemen). Generalmente, l'avvento dell'Islam non ha implicato la distruzione e riconversione di questi luoghi di culto.

Cupola della Roccia

Il più antico monumento islamico datato è la cupola della roccia (691/2) a Gerusalemme (conquistata intorno al 634). I musulmani costruiscono inoltre un altro edificio adiacente: la moschea di al-Aqsa. Accanto a questi edifici religiosi sorgevano i palazzi del potere politico-amministrativo.

La forma ottagonale era impiegata in contesto cristiano per commemorare luoghi particolarmente rilevanti, ad esempio quelli che conservano le reliquie dei martiri. L'arte islamica riprende questa struttura. La cupola della roccia, di forma ottagonale, è costruita attorno ad una roccia particolarmente importante. E' presente anche uno spazio sotterraneo dove è possibile pregare. Non si tratta tuttavia di una moschea, perché non adibita alla preghiera collettiva. L'attuale struttura esterna è di epoca ottomana, la cui parte inferiore parla un linguaggio tipico mediterraneo tardo antico. Come si gira intorno alla Kaaba a Mecca, così si gira intorno alla roccia della cupola della roccia. L'interno dall'edificio è interamente costituito di spoglie; vi è un importante impiego di mosaici dorati di stampo tardo-classici, tardo-romani, bizantini. Le differenze principali sono: l'assenza totale di immagini figurative (umane) e la calligrafia come elemento decorativo. Le tessere d'oro sono realizzate inserendo una sottilissima lamina d'oro tra due tessere di vetro trasparente.

Raffronti tra i mosaici della Cupola della Roccia con quelli della Santa Sofia di Bisanzio (VI-VII Sec) dimostrano una stretta interconnessione tra le due realtà. La qualità dei mosaici bizantini era al tempo incontrastata, per questo anche gli islamici ne facevano uso.

decorazioni_floreali_cupola.jpg

L'iscrizione che corre lungo tutte le pareti della Cupola della Roccia è lunga circo 240m ed è datata al 691/2. Il motivo per cui la Cupola della Roccia è così importante per i credenti è che da lì sarebbe partito il profeta per affrontare la salita verticale del suo viaggio (miraj) voluto da Dio, da Mecca a Masjid al-Aqsa (La moschea ultima) e poi da lì al cielo. E' importante notare che il Corano non cita Gerusalemme e le iscrizioni non parlano di miraj né di Majid al-Aqsa: dunque probabilmente nel primo Islam non era questo l'evento che si commemorava. Nelle iscrizioni si ritrova invece più volte che (cfr. slide): Dio è uno ed eterno (non è stato creato), non ha generato (polemica con il cristianesimo). Nelle iscrizioni si ricorda che Muhammad è il servo di Dio ed il suo messaggero ed in particolare che Muhammad sarà intercessore per il suo popolo presso Dio nel giorno della Resurrezione che sarà a Gerusalemme. Infine: “la cupola è stata costruita dal servo di Dio Abd (Allah l'Imam al-Mamun, il comandante) dei fedeli, nell'anno 72”. Inizialmente il nome che figurava era quello di Abd al-Malik ed è stato successivamente sostituito.

La cupola della roccia rappresenta il luogo dunque dove secondo la tradizione si realizzerà il giorno del giudizio. Proprio in epoca fatimide invece, la cupola della roccia inizierà ad essere associata al miraj.

Immagini figurative e primo Islam

Spesso è più facile che si conservino gli edifici religiosi piuttosto che quelli civili, infatti questi sono protetti dal waqf.

Per motivazioni casuali, sono arrivate fino a noi costruzioni civili della dinastia 'Umayade. Il più integro tra questi è un palazzetto termale in Giordania, il Qusayr Amra (VIII sec); faceva parte di un complesso che doveva contenere una residenza e dei terreni agricoli.

In questi palazzetti si ritrova per la prima volta l'utilizzo non problematico da parte di committenti musulmani della figura umana. E' indice del fatto che il divieto di rappresentare figure umane era limitato agli edifici religiosi.

Innovazioni del IX secolo

Nel IX secolo, sotto la dinastia Abbaside, si introduce un gusto islamico innovativo: uno degli esempi è la produzione dei Corani. Uno di questi è il Corano di Amajur, che viene donato come waqf. Ci sono rapporti geometrici molto precisi nella realizzazione del Corano. L'arabo inizia ad essere utilizzato in forma artistica: la calligrafia viene canonizzata. Oggi la calligrafia è chiamata cufico: perché probabilmente sviluppata a Cufa. Lo stile calligrafico è un utile metodo di datazione degli artefatti.

Oltre alla calligrafia, nel IX secolo, si sviluppa un metodo di decorazione della ceramica: la tecnica del lustro metallico.

Un ultimo esempio di innovazione è una prima tendenza ad utilizzare la forma vegetale presente in natura seguendo un forte processo di astrazione. Questo è evidente negli stucchi di Samarra.

Idolatria

L'idolatria è il pensare che la raffigurazione della divinità abbia degli attributi che sono associabili alla divinità. L'Islam sin dall'inizio, sul tema dell'idolatria, si pone nel solco dell'ebraismo piuttosto che del cristianesimo. Nel periodo tardo antico si credeva molto al potere delle immagini.

Il Corano non si esprime sul tema dell'arte, però più volte si esprime sulla problematica degli idoli. L'attenzione è posta sull'impossibilità per gli umani di essere creatori come lo è Dio. La tradizione musulmana racconta di come Muhammad abbia distrutto gli idoli della Kabaa.

Un altro modo per rendere inefficace un'immagine è la damnatio memoriae. Oppure è possibile agire su punti specifici del corpo per rendere inefficace il potenziale dell'immagine: come occhi, bocca, mani… Si racconta dunque che Muhammad abbia punzecchiato gli idoli negli occhi con la punta di una lancia. Talvolta, parte delle immagini sono anche scalpellate via dal muro.

damnatio_memoriae.jpg

Nei luoghi di culto islamici è dunque rarissima la presenza di immagini figurative. Tale atteggiamento trova degli echi anche nella tradizione protestante. Al di fuori dell'ambito religioso non si ritrova generalmente tale posizione.

A fronte di tale proibizione viene fornita un'alternativa: creare immagini di alberi e altri oggetti inanimati.

Moschee

Il termine moschea viene da quello arabo masjid. Il prefisso ma indica il luogo; invece il radicale sjd indica la preghiera. Il termine masjid indica dunque qualsiasi luogo di preghiera; ad esempio erano frequenti costruzioni in zone desertiche che svolgevano la funzioni di luoghi di culto. Un altro termine per indicare la moschea è: masjid jami'a; esso indica il luogo in cui si prega collettivamente. Per questo motivo, in italiano, il termine è spesso tradotto come Moschea del venerdì o Moschea congregazionale. In particolare in questa moschea l'Imam pronuncia il sermone del venerdì. Generalmente in ogni città era presente una moschea del venerdì.

Luoghi molto semplici possono avere le caratteristiche essenziali per essere una moschea. Tali caratteristiche fondamentali sono:

  • avere la pianta di una forma geometrica che permetta l'orientamento verso la Mecca;
  • la delimitazione del luogo per garantirne la purezza.

perimetro_sito_religioso.jpg

Moschea di Medina

La narrazione interna musulmana dell'origine della Moschea ne rintraccia le origini a Medina, legate alla necessità di avere un luogo di preghiera della prima comunità. Attualmente la prima moschea di Medina non è più rintracciabile a causa degli avvicendamenti posteriori. E' stato tuttavia tentato di ricostruire un'immagine di tale prima moschea basandosi sui testi.

Nelle moschee è sempre presente uno spazio aperto, una corte, chiamato sahn; in storia dell'arte tale spazio è chiamato ipetrale. Inoltre vi è uno spazio chiuso dove si effettua la preghiera; questo spazio è chiamato ipostilo. Lo spazio chiuso è quello caratterizzato dall'orientamento (qibla).

Nel tempo, la prima moschea è stata ampliata, in particolare è ingrandito lo spazio ipostilo. In epoca Omayade le moschee iniziano a prendere una struttura ufficiale. Lo spazio coperto inizia ad essere strutturato attorno alla corte ipetrale. E' sempre stato importante poter ampliare la moschea in casa di aumento di fedeli; la struttura a pilastri è particolarmente adatta a tale tipo di espansione.

Nella moschea di Medina, il tempo, la tomba del profeta viene inglobata dalla moschea. Inoltre, nella qibla, viene introdotta una nicchia concava che si chiama mihrab; dal 700 in poi la mihrab diviene una costante in tutte le moschee che vengono costruite: tale spazio serve a commemorare il luogo in cui pregava il profeta. Da un edificio molto semplice senza spazi gerarchici al suo interno ci si avvia verso una costruzione più strutturata.

moschea_di_medina.jpg

Moschea di Damasco

La moschea Omayade di Damasco del 705 è arrivata sino a noi; Damasco era già una città importante. Tale moschea è stata creata sul luogo di una precedente chiesa cristiana.

Lo spazio a nord della moschea è il cortile, mentre la qibla è la facciata sud. Nella qibla sono presenti più mihrab, poiché il muro è lungo più di 100m. La sala di preghiera è suddivisa in tre navate. Al centro della sala di preghiera è presente un transetto: una navata che interseca le altre tre che le sono trasversali; nelle intersezioni sono presenti dei robusti pilastri per sostenere il peso. Le navate possono essere trasversali o parallele alla qibla; quando sono trasversali quella centrale è più ampia e ha la stessa funzione del transetto.

moschea_damasco.jpg

Il termine minareto viene dall'arabo manara; nella moschea di Damasco sono presenti tre minareti, nei due angoli a sud e al centro della facciata a nord.

La moschea è decorata con mosaici parietali in pasta vitrea; oggi conserviamo solo una porzione minima di tali mosaici. Nel fregio sono presenti diverse strutture architettoniche; è possibile che il mosaico rappresenti il paradiso coranico. E' molto plausibile che tali mosaici fossero prodotti da maestranze provenienti o istruiti a Bisanzio.

mosaico.jpg

Sono inoltre impiegate lastre di marmo che producono motivi geometrici.

Le strutture visibili nel cortile sono fontane per le abluzioni e il bayt al-mal: il luogo in cui si conservavano i beni preziosi della moschea.

Fatimidi

mappa_fatimidi.jpg

Luoghi significativi:

  • Kufa: sede potere di 'Ali (più generalmente degli alidi), contropposto a Damasco. 'Ali ha sposato Fatima, figlia del profeta.
  • Damasco: sede potere 'Umayade (Banu 'Umayad). Dopo qualche decennio dalla morte del profeta, il potere inizia ad essere trasmesso in maniera dinastica. Gli 'Umayadi discendono dallo zio del profeta.
  • Kerbala: luogo della strage degli alidi realizzata dagli 'Umayadi (680), martirio di Husayn1). Califfo 'Umayade Mu'awya esce vincitore. La storia dei sostenitori di 'Ali diviene una storia di minoranza, di oppressione, di ingiustizia.
  • Salamiyya: 'Ubayd Allah (inizio X sec) si proclama essere l'imam dei settimani (o ismailiti) che era andato in occultamento e che è riaapparso, costituisce una comunità a Salamiyya che viene repressa dagli 'Umayadi e si sposta inizialmente a Sijilmassa (attuale Marocco). Grazie ad alleanza con i berberi, riescono a costituire autorità in un ristretto territorio.
  • Qayrawan: i seguaci di 'Ubayd Allah arrivano a dichiarare la del nascita del califfato fatimide, con al-Mahdi come primo califfo.
  • Mahdiyya: diviene la prima capitale
  • Mansurriyya: nuova capitale sotto al-Mansur
  • Il Cairo: nel 969 si trasferiscono in questa città

Distinzioni all'interno del campo sciita:

  • Settimani (ismailiti): Jafar al-Sadiq è un imam molto importante riconosciuto da tutti gli sciiti. Alla sua morte i due figli devono assumerne l'eredità: Musa e Ismail. I settimani riconoscono Ismail come successore.
  • Duodecimani: riconoscono Musa come successore

La ghayba è l'occultamento.

L'Imam è colui che sta davanti, chi guida la preghiera. L'imamato secondo gli sciiti non è solo un ruolo politico, ma rappresenta anche la carica di chi porta avanti il messaggio del profeta, in grado di produrre interpretazioni dottrinali. Gli sciiti allargano le fonti di autorità religiosa molto più dei sunniti. Jafar al-Sadiq decide che compito degli sciiti è attendere, non ricercare di ottenere il califfato; questo a causa dell'inferiorità nei confronti del potere Abbaside.

I duodecimani ritengono che sia stato il dodicesimo discendente di Ali ad essere andato in occultamente. Ritengono dunque che il Mahdi tornerà a ristabilire il potere. I settimani ritengono invece che sia stato il settimo discendente ad andare in occultamento. Per i Fatimidi è proprio 'Ubayd Allah il mahdi che si è rivelato dall'occultamento.

I Fatimidi dunque si ritrovano ad essere in opposizione agli Abbasidi. A contendersi il potere califfale sono dunque i Fatimidi, gli Abbasidi e gli 'Umayadi di al-Andalus, che nel X secolo proclamano il califfato.

I Fatimidi, nel periodo di massima espansione, intorno al 1150, regnano sulla costa del Nord Africa (Egitto), la Sicilia, la costa Siro-Palestine (Gerusalemme) e l'Hijaz (Mecca e Medina). Obiettivo dei Fatimidi è spodestare il potere abbaside; nel 1058, un militare fatimide riesce a far dire la predica a Baghdad in nome del califfo fatimide.

Nel 969 i Fatimidi fondano Al-Qahira al-Mu'izziyya (la vittoriosa) dove prima sorgeva Fustat, dove prima sorgeva Babilonia.

I fatimidi non impongono la loro visione dell'Islam alle popolazione, tuttavia si sviluppa la Da'wa (missione). Le majalis al-hikma erano degli incontri riservati agli iniziati, attraverso le quali era possibile accedere al senso metaforico e nascosto del Corano. Il senso esteriore e apparente è lo zahir, mentre il batin è il significato nascosto.

Ci sono alcuni califfi fatimidi significativi:

  • Al-Hakim: da alcuni soprannominato “il pazzo”; egli avrebbe molto spesso cambiato politica durante il suo regno, ad esempio nei confronti delle comunità cristiane. Sotto il suo califfato viene fondata la dar al-him (Casa della scienza) al Cairo. Qualcuno crede che lo stesso al-Hakim sia andato in occultamento, nascono così i drusi.
  • Al-Mustali: qualcuno non riconosce la sua successione, si sviluppa così un altro gruppo ismailita (setta degli assassini).

Una figura molto importante nel regno fatimide è quella del vizir (primo ministro); una specificità fatimide è che molto spesso il vizir è di origine non musulmana. Il più famoso è Badr al-Jamali, un vizir armeno. Anche il vizirato si trasmette per discendenza.

L'ultimo vizir fatimide è Salah Al-Din (la spada della religione, Saladino); sarà il primo sultano Ayyubide.

La geniza è un archivio di carte ritrovato nella sinagoga di Fustat. Questi ritrovamenti rivelano dettagli religiosi, economici, familiari, della grande comunità ebraica del Cairo sotto i fatimidi.

Arte pre-Fatimide

Moschea di Samarra

I califfi abbasidi lasciano per qualche anno Baghdad e trovano rifugio a Samarra. Qui costruiscono una moschea in mattone con decorazioni in stucco.

Moschea di Ibn Tulun

Un'altra importante moschea è quella di Ibn Tulun del 876-7 a Fustat. (completare dal libro) Il minareto è a spirale o elicoidale.

moschea_ibn_tulum.jpg

Rmq. le colonne nelle piante sono mostrate come circolari, mentre i pilastri sono dei parallelogrammi. Il pilastro tendenzialmente è più ingrombrante della colonna e può essere costituito anche di mattoni.

Grande Moschea di Qayrawn

Le dinastie con cui si devono confrontare i fatimidi sono:

  • Aghlabidi: dinastia locale che gestisce il potere per gli abasidi in Tunisia. La regione dell'Ifriqiyya consisteva nel territorio dall'Atlantico al confine con l'Egitto.
  • 'Umayadi: governano nella regione al-Andalus. Riconoscono il califfo abbaside, sono dunque una provincia. Al-Andalus consisteva con tutta la Spagnia. Nel decimo secolo diverrà un califatto.
  • Ziridi: si tratta di una dinastia berbera che si trovava in Algeria. Dal 1050 divengono indipendenti dai fatimidi.
  • Normanni: nell'undicesimo secolo comincia la conquista normanna della Sicilia.

Una moschea costruita sotto gli Aghlabidi è quella di Qayrawan in Tunisia del 836-863. In periodo abbaside generalmente il minareto è dalla parte opposta della sala di preghiera, questo cambierà con gli abbasidi. E' presente un minbar (pulpito) da cui chi predica dice la khutba (predica). La maqsura è la zona, separata da un sipario, riservata al califfo durante la preghiera del venerdì.

Il minareto di Qayrawan potrebbe aver assunto la sua forma dai fari romani della costa tunisina. Infatti una delle parole per indicare il minareto è manara: luogo della luce (probabilmente in un primo momento non veniva utilizzata la voce per il richiamo alla preghiera).

minareto_qayrawan.jpg

Una moschea ha la pianta a T quando l'ultima campata delle navate si interrompe per la presenza di una navata trasversale che corre lungo la qibla. La campata è la struttura con un pilastro che getta un arco verso un altro pilastro.

Moschea di Sousse

Un'altra importante moschea aghlabide è quella di Sousse. E' uno dei riferimenti che hanno i fatimidi quando iniziano a costruire moschee in Tunisia.

Arte Fatimide

Mahdiyya

Nel 909 i Fatimidi fondano il loro califfato a Qayrawan. La loro capitale viene però costruita nel porto di Mahdiyya, si tratta di una città califfale: un palazzo-città fortezza. I fatimidi capiscono fin da subito l'importanza di controllare le rotte marittime commerciali. La città viene fondata ex-novo, prima non vi era nulla perchè mancavano fonti d'acqua. I fatimidi costruiscono cisterne per conservare l'acqua. La città viene costruita come una stretta penisola, con una porta monumentale e una fortificazione sul lato di contatto con la terra. Viene costruita una moschea e un palazzo costituito di due strutture.

mahdiyya.jpg

La moschea di Mahdiyya è la prima moschea fatimide. Non si tratta di una moschea monumentale. Il modello è la moschea di Qayrawan. Vi è un ingresso monumentale alla moschea dove solitamente si trovava il minareto, si tratta di una novità. L'origine dell'ingresso è quella dell'arco trionfale romano, una costruzione commemorativa. Gli archi trionfali romani, nei secoli successivi, è stato inglobato nelle cinta murarie; è questo il modello a cui si sono ispirati i fatimidi. Si tratta di un arco a ferro di cavallo, ovvera che rientra leggermente alla base; si diffonde solo in Nord Africa e al-Andalus. E' possibile che vi fosse un'inscrizione nell'arco, cancellata a posteriori. Infatti a Qayrawan è presente anche una piccola moschea di periodo pre-fatimide dove sopra l'ingresso sono presenti delle iscrizioni.

Ai lati si trovano due torri che servivano da cisterne. Probabilmente non era presente il minareto, che non era considerato essenziale per i fatimidi.

Gli aghlabiti costruivano un particolare edificio: il ribat; si tratta di un luogo fortificato sulla linea di confine, funzionale alla difesa militare e alla diffusione della fede. Rabat prende il nome da questa struttura. In particolare si può osservare il ribat di Sousse; esso possiede una sporgenza in concomitanza dell'ingresso che può avere funto da ispirazione per l'ingresso della moschea di Mahdiyya.

Gli ingressi monumentali sono divenuti una caratteristica architettonica fatimide. La corte fatimide diviene molto pomposa; durante le cerimonie il califfo si recava dal palazzo alla moschea, celebrando i successi del califfato. Dunque la forma architettonica porta con se un significato importante. Un'altra ipotesi a riguardo dell'ingresso trionfale viene da un hadith sciita in cui è Muhammad a parlare:

“io sono la città della conoscenza e Ali ne è la porta”.

Il portale doveva dunque simboleggiare il legame privilegiato tra Ali e il profeta.

portale_mahdiyya.jpg

Di Mahdiyya non rimane molto:

  • un resto di pavimento a mosaico: forma artistica molto tipica locale
  • i resti del palazzo, di cui però è rimasto pochissimo (non protetto da waqf)
  • un rilievo in pietra che mostra una persona seduta (all'orientale) per terra, con un calice e una corona in testa; il volto è stato molto rovinato. Sul braccio il sovrano indossa una banda epigrafica: tiraz. Accanto vi è un suonatore: si tratta dunque di una scena di corte. Tuttavia è plausibile che appartenga al periodo successivo (XI sec) quando Mahdiyya è sotto il governo ziride.

Spesso nei palazzi vi è un'unità che si ripete, in questo caso è un ambiente di pianta quadrata che si ripete quattro volte. Le due ali sono i settori privati, mentre la zona di ricezione è quella centrale più in alto.

Sabra al-Mansuriyya

Sotto il califfo al-Mansur, viene costruita la nuova capitale fatimide: Sabra al-Mansuriyya. Della città palazzo di Sabra al-Mansuriyya non rimane più nulla, perché è stata successivamente utilizzata come cava di materiali al seguito dello spostamento dei fatimidi in Egitto. Pare accertato che la pianta della città palazzo fosse circolare: questa è una novità.

https://virtuale.unibo.it/pluginfile.php/1511561/mod_resource/content/1/Islamic_Art_and_Visual_Culture_Fatimidi.pdf

L'autore del testo che descrive Sabra al-Mansuriyya è Al-Muqaddasi (colui che viene da Gerusalemme). Anche Baghdad, fondata nel 762, aveva una pianta circolare: il mondo abbaside rimane un importante riferimento per i fatimidi. L'altro riferimento sono gli 'Umayadi di Spagna; in particolare si può osservare Madinat al-Zahra. Anch'essa si base sull'utilizzo dell'acqua in relazione ai palazzi del califfo.

Monete

Con al-Mansur nasce una nuova moneta molto riconoscibile. Si tratta di oggetti totalmente epigrafici: con solo iscrizioni. La moneta fatimide si basa su cerchi concentrici. All'esterno vi sono informazioni: chi ha coniato la moneta e quando. Nel campo centrale vi sono iscrizioni religiose.

Fasi calligrafiche

A livello stilistico, la calligrafia araba ha delle fasi:

  • Cufico: dal VII secolo allo XI secolo
    • Cufico base: scrittura angolare e geometrica
    • Cufico fogliato: (dal X secolo) parte terminale delle lettere assume forma a foglia
    • Cufico fiorito: (da XI secolo) nello spazio tra le lettere vengono aggiunti motivi decorativi che sembrano germinare dalle lettere
  • Corsivo: si sviluppa dallo XI secolo

cufico.jpg

Non sono i fatimidi i primi ad inserire iscrizioni monumentali negli edifici pubblici.

Corano blu

Uh altro grande oggetto associato generalmente alla fase nord-africana fatimide è il Corano blu. Delle 600 pagine che costituivano questo corano a fondo blu e iscrizioni in oro, ora la maggior parte sono disperse per il mondo. Il corano blu è stato datato al X secolo. E' scritto in cufico. Rimane visibile uno schema geometrico tracciato sul foglio che permetteva di mantenere le giuste distanze tra le lettere e le righe. Viene impiegata una strategia grafica per giustificare il testo: si estende la scrittura.

corano_blu.jpg

Stucchi

Sono stati ritrovati anche numerosi stucchi con motivi vegetali ma anche raffigurazioni umane. La distinzione pubblico-privato potrebbe essere più adeguata di quella religioso-secolare per la scelta dell'impiego di immagini figurative.

presentazione Federico

Il Cairo

La città preesisteva l'arrivo dei fatimidi. I musulmani arrivano a Babilonia nel VII secolo. Gli arabo-musulmani si installano poco a nord di Babilonia e fondano il sito di Fustat. Con l'arrivo dei fatimidi queste zone vengono inglobate.

Attorno alla regione urbana fatimide vi sono due recinti: uno dei due è una cinta muraria costruita da Jawhar. Vi sono al centro due palazzi gemelli.

Racconto di viaggio di del viaggiatore persiano Naris Khusraw.

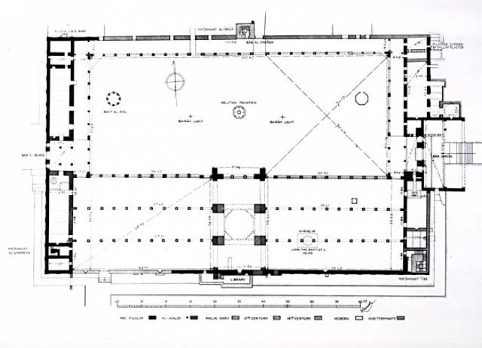
Moschea di al-Azhar

La nuova città palatina ospita sin da subito la moschea di al-Azhar. Si tratta di un edificio molto complesso: è stato infatti uno dei luoghi d'istruzione più importanti dell'Egitto e del mondo musulmano. La pianta mostra che sono state costruite delle strutture di epoca mamelucca addossate alla facciata: è dunque stato distrutto il portale che doveva essere monumentale. Inoltre è evidente l'estensione della sala di preghiera oltre la qibla: si tratta di un edificio vivo, non un oggetto di museo.

pianta_moschea_al-azhar.jpg

L'edificio ha avuto due fasi in epoca fatimide: tra una fase e l'altra cambia soprattutto la forma degli archi che sono stati utilizzati. La prima fase è caratterizzata dall'utilizzo dell'arco acuto, mentre la seconda impiega l'arco carenato (per la somiglianza con la carena di una nave rovesciata).

La pianta della moschea durante la prima fase è quella tipica; differisce solo nel fatto che lungo le navate le navate corrono parallele alla qibla. Le arcate della corte fanno invece parte del secondo periodo fatimide.

L'arco carenato è di origine persiana. Esso è realizzato utilizzando 4 centri: quattro curvature diverse.

L'interno della moschea era caratterizzato di decorazioni in stucco policromo, con decorazioni geometriche, vegetali ed epigrafiche.

Moschea di al-Hakim

Esiste un'altra moschea della prima fase fatimide che è arrivata fino a noi. Si tratta della moschea di al-Hakim; un tempo si trovava fuori dalla cinta muraria, probabilmente era utilizzata per la preghiera nei giorni di festa. In questa moschea (restaurata) è ancora visibile la facciata.

moschea_al-hakim.jpg

Sopra il mikhrab vi è una piccola cupoletta. Qui è visibile la transizione della base quadrata a quella ottagonale. Questa transizione è ottenuta nella maniera più semplice: attraverso la costrizione di archi negli angoli del quadrato. Questo tipo di transizione prende il nome di tromba d'angolo. Sull'ottagono si aggiunge l'elemento architettonico del tamburo nel quale si aprono le finestre necessarie all'illuminazione. Sopra il tamburo di appoggia la cupola.

L'ingresso di questa moschea è stato non visibile a lungo. Ora visibile, l'ingresso è monumentale. Si tratta tuttavia di un ingresso diverso da quello di al-Mahdiyya. Notevole è la presenza di archi cechi. La sua struttura è tipica dell'area siro-palestinese. E' molto appariscente anche l'alto portale che porta il nome di iwan: appartiene alla tradizione architettonica del centro asiatico. L'iwan è una sala voltata, con un lato aperto tramite un arco a tutta parete.

Ai lati della facciata vi sono due strutture, sulle quali vennero costruiti in epoca successiva dei minareti.

Lo stesso califfo al-Hakim ha donato alla moschea delle imponenti porte di legno. Sulle due ante vi è un'iscrizione che insiste sulla giusta linea di successione.

Palazzi

Dei palazzi non è rimasto nulla se non delle descrizioni ed alcuni elementi decorativi che ci sono giunti perchè riutilizzati in edifici successivi. Si tratta di enormi travi lignee decorate con motivi figurativi. Furono utilizzate in successivi edifici religiosi nascondendo la parte decorata. Le scene non hanno uno spirito narrativo, ma sono inserite in figure geometriche. E' interessante come sia presente una tendenza riempitiva degli spazi: horror vacui. Nelle aree vuote sono infatti inseriti motivi floreali.

travi_lignee.jpg

Moschea di al-Juyushi

presentazione debora In arabo si impiega la parola mashhad: luogo di martirio. Si trovava fuori dalla città sulla collina di Moqattam.

Il muquarnas a partire dall'undicesimo secolo comincia a diffondersi in tutta la regione araba e asiatica. Si tratta di un elemento che premette di riempire lo spazio tramite una serie di archetti e nicchie sovrapposte, che sporgono sempre più verso l'esterno. Si afferma dal X/XI secolo a partire dall'area mesopotamica e iranica.

presentazione moschea di al-aqmar (la luce)

Nuove mura

Sul finire dell'undicesimo secolo, Badr al-Jamali viene richiamato al Cairo, perché il califfo attraversa una fase di difficoltà. Con il suo arrivo, al-Jamali permette di ristabilire l'ordine. Al Cairo viene costruita una nuova cinta muraria che ora include la moschea di al-Hakim; si tratta di mura in pietra molto resistenti. Si ritiene che al-Jamali abbia importato manodopera dalla Syria per la costruzione delle mura. Particolarmente importanti sono le 3 porte:

  • Bab al-Nasr (la vittoria)
  • Bab al-Futuh (le conquiste)
  • Bab al-Zuwayla (su questa porta sono poi stati costruiti minareti in epoca mamelucca)

Sulla sommità dei portali di ingresso delle porte era presente un balcone da cui era possibile osservare le cerimonie che passavano dalla porta.

Luoghi di commemorazione

Nel tempo aumentano i luoghi di commemorazione: mashhad è il luogo della testimonianza. Nella dottrina musulmana è presente il problema dell'intercessione: c'è l'attenzione al fatto che le tombe dei martiri non diventino luoghi di culti. Tuttavia sono presenti numerosi luoghi che ricordano figure importanti per la tradizione; non si tratta necessariamente di luoghi di sepoltura. Vi è la possibilità di commemorare figure particolarmente pie che sono apparse in sonno. La struttura architettonica è sempre una stanza cupolata.

Uno di questi è il mausoleo di Sayyda Ruqayya. Era una figlia di 'Ali ma non di Fatima.

Nella struttura è presente un cenotafio: una tomba senza la salma. Il mikhrab ricorda l'arco del portale di ingresso della moschea di al-aqmar. E' presente un medaglione centrale in cui si ricordano i nomi di Muhammad e di Ali: questo medaglione si ritrova in tanti contesti.

Riprendere parte sulle iscrizioni cufiche o corsive.

presentazione efrem velo di Sant'Anna

Discorso sul Tiraz: tessuto con iscrizione (generalmente nome sovrano o località), ha una sfera di significato molto ampia

presentazione mr. simpatia avorio

Spesso gli oggetti fatimidi si sono conservati al di fuori del territorio del califfato fatimide. Alcuni oggetti vengono risignificati in territorio europeo in chiave religiosa cristiana. Ogni materiale ha anche un valore estetico: legato alle qualità intrinseche del materiale. Ad esempio l'avorio era apprezzato per il suo candore.

Nel contesto islamico non si viene inumati con oggetti personali: non sono dunque presenti fonti utili che si ritrovano invece presso altre civiltà (ex. Etruschi). L'unico oggetto che talvolta viene ritrovato sono i tessuti, utilizzati per avvolgere la salma.

E' soprattutto nel XVIII secolo che gli oggetti d'arte iniziano ad essere interrogati alla ricerca di informazioni sulla loro origine e contesto di produzione.

presentazione cristalli di rocca

1)
Tutt'oggi: Ashura, commemorazione martirio di Husayn
archeologia_storia_dell_arte_islamica_medievale.txt · Ultima modifica: 2023/02/21 13:49 da moroko